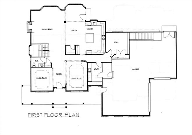
The Carter James is a 4,500 square-foot custom home in Plainfield’s Rolling Acres that sold in May 2006.
Photo Gallery requires Flash Player 7.0 or Greater
> Download Flash Player