Home        About Us        Services        FAQ        Testimonials
Plan Your Project        Photo Gallery        Contact Us

Springbank - Plainfield, IL

Located in Plainfield, Illinois, Springbank is a beautiful clubhouse community that’s perfect for families.

Springbank Elevation Drawing

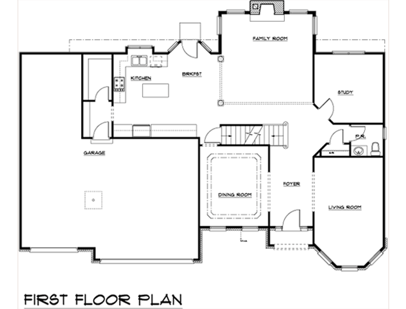
Springbank 1st Floor Plan

Springbank 2nd Floor Plan